The Christ Church Renewal Project – 17th January 2017

2017-04-26T19:54:52+01:00

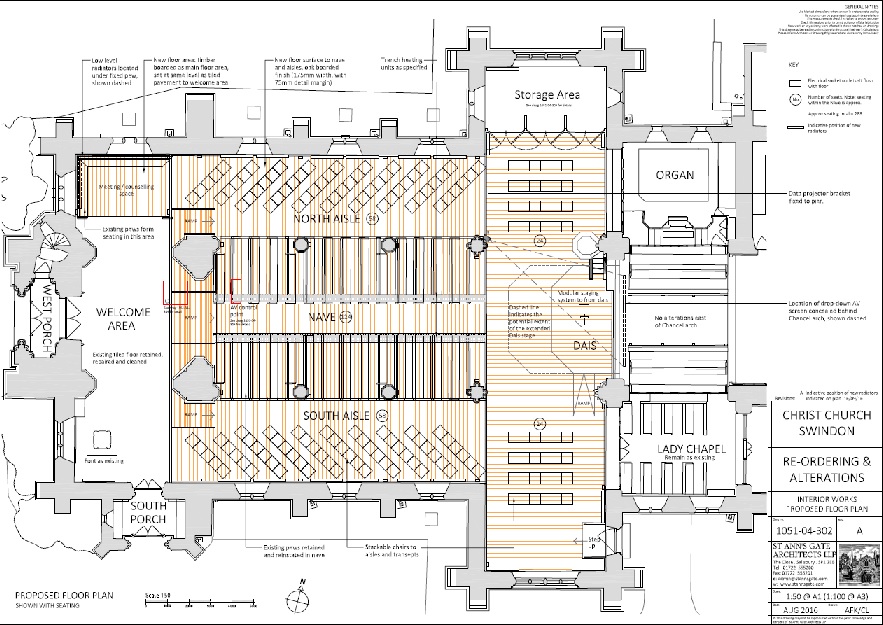
For some years Christ Church has been planning a renovation project which aims to make the building more accessible, warmer, lighter and more flexible for use by both its congregation and the local community. This involves the installation of new heating and lighting systems, a new wooden floor giving level access across the church, improved audio and visual facilities as well as the removal of the side aisle pews and a new storage area in the North transept. The central pews will be retained as now although the 3 smaller pews at the rear of the church will also be removed to enable new radiator positions and to provide more space in the welcome area.

You can also download the key information from the links below:

plan-icon

Drawing of the existing church layout

Proposed Floor plan

More details of the proposals themselves

 

 

The Christ Church Renewal Project – 17th January 20172017-04-26T19:54:52+01:00

Arrangements for our temporary church closure

2017-04-26T19:38:52+01:00

Work has now begun to refurbish Christ Church – you can find out what we are doing here.

As Vicar and Church Wardens we are asking you today to pray that we will make the most of this window of opportunity and will grow as a congregation as we work together seeking God’s guidance and presence each step of the way. We are enormously grateful to our P.C.C. Buildings Committee for their professionalism, wisdom and commitment in getting us to this point.

After a series of meetings this week, the plan is that all of our Sunday worship will take place in the Community Centre for the next 8 weeks.

  •  8am Holy Communion Service in the Large Meeting Room
  • 10am All Age and Holy Communion Services in the Main Hall and Garden Room, with the choir being unrobed. Sunday Club will either be with the main worship, or in Chris’ office or in the Vicarage, to be confirmed.
  • 4pm Sunday @ 4 in the Main Hall and Garden Room as normal.
  • 6.30pm Evening Worship, in the Main Hall and Garden Room.
  • Midweek 9am Morning Prayer – in the Large Meeting Room.
  • Wednesday 10.30am service at St Mary’s.

In one important sense it will be business as usual but in another sense there will be some differences with the change of ambiance and we will be warmer!! We trust that you will do all you can to encourage one another and lend a hand practically where you are able. If you have any questions or concerns please don’t hesitate to contact us at any time. Please pray for all the preparations. We look forward to confirming these arrangements next weekend.

Thank you for all your support and understanding.

Every blessing

Simon, Daniel and Mike (Vicar and Church Wardens)

You can find out more detail about our plans here. Overview

 

 

Arrangements for our temporary church closure2017-04-26T19:38:52+01:00

Songs of Praise – Community Centre Christ Church 11th February 2.30pm

2017-02-22T10:54:41+00:00

Come to our Songs of Praise event at Christ Church Community Centre on Saturday 11th February 2.30. Enjoy a good sing with G&T (that’s Geoff and Tim, sadly no gin involved). Although there will be tea & cakes too. All are welcome. Donations for the Partnership Foyer Project.

Songs of Praise – Community Centre Christ Church 11th February 2.30pm2017-02-22T10:54:41+00:00

Community Centre – Together @ Christmas

2017-02-22T10:55:34+00:00

Our first Christmas Day event couldn’t have gone any better! We opened the Community Centre @ Christ Church from 12-3pm in order to host a 3 course meal
including Christmas singing and ending with the Queens speech. Quite aptly the Queen spoke about Community spirit which we had managed to capture within our
building that day too. There was fun, laughter and food provided for 40 people who would have otherwise been on their own on Christmas Day. Not to mention the 25 volunteers who were also fed.

There was an amazing buzz around the Centre that day and I felt particularly humbled by the whole day and by the amount of kindness from everyone in the
room. It is amazing how generous people can be when you try to do something nice for others at a time of year that should really be held in a family friendly environment.Volunteers gave up their time on the day itself and before, others gave financial backing to the cause whilst others donated particular items. It was amazing to see
the whole community come together. We have received so much positive feedback after the event from both volunteers and attendees alike and will be looking to make this an annual event.

If you would like to volunteer at next year’s event please do get in contact with me.

Chris Smith – Email: chris.smith@ccccswindon.co.uk or Tel: 01793 617237

Community Centre – Together @ Christmas2017-02-22T10:55:34+00:00

Christ Church Renewal Project gets the green light

2017-02-22T10:55:08+00:00

We are pleased to announce that Christ Church has been awarded a faculty to proceed with its renewal works. This follows a lengthy consultation process during which various interested parties have been given the opportunity to comment and provide advice on the work.

It is difficult to find suitable times to complete such a complex and extensive set of works but we have identified an opportunity during the 8 weeks commencing 6th February 2017 and 6th April. In order to ensure that the work has the best chance of completion prior to a wedding booked on the 8th April and the Easter celebration the following week, it has been decided to close the church completely. This will allow the various trades the maximum flexibility to carry out the work on the new heating system, lighting, new wooden floor, storage area and audio visual improvements.

During the closure of the church arrangements for worship will be as follows:

  • 8am – Holy Communion Service in the Large Meeting Room
  • 10am – All Age and Holy Communion Services in the Main Hall and Garden Room, with the choir being unrobed. Sunday Club will either be with the main worship, or in Chris’ office or in the Vicarage, to be confirmed.
  • 4pm  – Sunday @ 4 in the Main Hall and Garden Room as normal.
  • 30pm – Evening Worship, in the Main Hall and Garden Room.
  • Midweek – 9am Morning Prayer – in the Large Meeting Room, and on some days when this is not available, in the Vicarage.  These locations will be confirmed.
  • Wednesday – 10.30am service in the Large Meeting Room, or at St Mary’s.  These locations will be confirmed.

We hope that the result of this investment will be a renewed, refreshed and revitalised church building – fit to meet the challenges and expectations of those who use it both for regular worship, occasional service and for recreation and entertainment now and in the future.

You can read about our plans in more detail here.

Christ Church Renewal Project gets the green light2017-02-22T10:55:08+00:00

Details of our Christmas Services

2017-01-27T17:38:45+00:00

Knit 1Sunday 18th December

  • 10am Christingle Service –  We each receive a candle reminding us that Jesus is the Light of the World, shining into the darkness. We also receive an orange decorated with fruits, symbolising the fruits of the Earth and tied with a red ribbon, to remind us that Jesus died on the cross shedding his blood for us all.
  • Traditional candle lit Lessons and Carols Service – 6.30pm

Thursday 22nd December

  • 6.30pm Swindon Town Football Club Carol Service

Christmas Eve

  • 4pm Crib service An opportunity for the whole family to enjoy the Christmas Story together and to sing well-known and much-loved carols and songs just before THE BIG DAY!Knit2
  • 11.30pm Midnight Mass

Christmas Day

  • 8am Holy Communion
  • 10am Family Holy Communion

New Year’s Eve

  • 11pm Watch Night Holy Communion and party
Details of our Christmas Services2017-01-27T17:38:45+00:00

A message from Rose

2016-12-09T15:34:44+00:00

In January of this year, my precious son, Gavin, moved from Australia to live and work in Swindon. As a qualified electrical engineer, he had been invited by Network Rail to come and helping with the electrification of the British railway system. When driving on his way to work on a Saturday night in June, Gavin was critically injured after a car crashed into him whilst travelling in the opposite direction. I am forever grateful for the miracle that, due to a passing ambulance stopping and performing CPR, Gavin, who had suffered a cardiac arrest and had died at the scene, was able to be airlifted to John Radcliffe Hospital and be placed on life-support. This then meant family members were able to travel from Australia and spend quality time with him. Friends who were already in England, plus Gavin’s work colleagues, were constantly by his bedside as well. lt also gave 6 special people the beautiful gift of life through Gavin’s generous donation of his organs.

gavin

Gavin Roberts

Throughout this incredibly sad journey, I have known that God’s grace and mercy has never been felt more or experienced so powerfully by me. I’ve believed for many years that I was to one day go to England, and that I was to give to people the message of hope. Whilst family and friends were gathered around Gavin’s bed, I felt led to say to them, “I want you to have compassion and forgiveness for the other driver.” Since then, many doors have opened for me to be able to spread the message on compassion and forgiveness. I have also been led by the Lord to talk about reaching the crossroads of life. “If you harden your heart and not forgive, then you can become bitter and resentful, but if you choose to forgive and your heart remains soft, then you can be used to help people and grow as a human being in a positive way.”

God is using me to hopefully, help people make better choices when they go through life. He is also having me deliver the Christian message on forgiveness in a non-threatening manner. It has been a great blessing to me when people have said to me afterwards that by hearing my message, it has caused them to think differently. How wonderful is that! Isaiah 55:11: “so is my word that goes out from your mouth; It will not return to me empty, but will accomplish what I desire and achieve the purpose for which I sent it.” The message of hope I give is part of Gavin’s on-going legacy.

With blessings, Rose Joshua

 

memorial

Gavin’s friends & family at his memorial service in Christ Church

Footnote – Gavin was one of those who was remembered in our Service of Commemoration for the departed on the 6th November. You can hear the whole service and the names read out here: http://ipad.io/llx4h4c

 

A message from Rose2016-12-09T15:34:44+00:00

Men’s Breakfast Talk

2016-12-09T15:33:43+00:00

The men’s breakfast group had a fascinating, though disturbing talk from Elizabeth Brightwell who has recently returned from a 3 month spell in Palestine as an Ecumenical Aeappiccompanier. The Ecumenical Accompaniment Programme in Palestine and Israel (E.A.P.P.I) is an international organisation and is co-ordinated by the World Council of Churches. There are about 25 countries involved and over 1,500 Ecumenical Accompaniers have been sent to Israel-occupied Palestine since 2002. Around 200 of these have been from Britain and Ireland. The programme is managed in Britain and Ireland by Quaker Peace and Social Witness on behalf of its partners – which include C.A.F.O.D, Churches Together in Britain and Ireland, Christian Aid, Pax Christi UK, The Church of Scotland, Church Mission Society, Iona Community, The Methodist Church, The Scottish Episcopal Church, Presbyterian Church of Wales, The United Reformed Church, the Baptist Union of Great Britain.

Liz described her 3 month placement – she only spoke of her own experiences to ensure impartiality and accuracy. Her talk included some of the history behind the conflict between Palestine and Israel and outlined some of the ways in which Israel violates Human Rights and International Humanitarian Law. The issues are complex and EAPPI has to work hard to maintain its neutrality and to end the occupation and promote a just peace in Palestine and Israel.  Find out more about the work of EAPPI in the EA’s blogs here.

If you are interested in finding out how you might be able to make a difference yourself, an FAQ about the Accompanier scheme and details of how to enrol are here http://eappi.org/en/join/become-an-ea/ea-faqs

Men’s Breakfast Talk2016-12-09T15:33:43+00:00

Come and Sing Handel’s Messiah in Christ Church

2016-10-27T22:36:49+01:00

In Christ Church, Swindon, Saturday 12th November. In aid of the Brighter Futures Campaign

A great opportunity to join in

  • Singers register 1.00pm for 1.30pm start
  • Bring your own copies (a few available to borrow)
  • Break at 2.45pm, rehearsal ends 5.15pm
  • Performance at 7.00pm.

Tickets: £10 for both Singers and Audience
Further information or queries to Kath Danswan:
kath.danswan@tiscali.co.uk or by post
13 Croft Road, Swindon, SN1 4DG

To sign up download the entrance form

 

 

Come and Sing Handel’s Messiah in Christ Church2016-10-27T22:36:49+01:00

Update on our heating system

2017-01-27T17:39:25+00:00

Failure of Heating System – Arrangements for Winter 2016/17

churchThe Drugasar gas convector heaters in Christ Church were inspected by a competent service contractor last week.  Unfortunately, due to their age and obsolescence, of the 14 heaters in the church, a total of 11 have now been condemned on the basis of safety.  Three of the heaters continue to function.  Compared with winter 2015/16, we now have only about 25% of the gas convector heating capacity in the building.  The working heaters are in the Lady Chapel, and one each in the north and south transepts.

The churchwardens and the Buildings Committee are planning to make additional provision by the use of temporary electrical heating, using industrial fan heaters and possibly infra-red electric heaters.  The extent of the use of electrical heating is limited by the electric load capacity of the building.

As the winter approaches, we will monitor the temperatures outside and inside the building and will try to manage the use of Christ Church on a day by day basis to minimize discomfort.  One simple way of doing this will be for us all to be careful about conserving heat in the building by making sure that the west and south doors are not left open unnecessarily, to minimize escape of warm air.  The congregation and users of the building will be kept informed of the heating situation.

For the future, plans are advancing for the installation of an all-new gas fired wet (i.e. radiators) system.  This is one essential part of the re-ordering project which, subject to the granting of the formal faculty, is planned to be carried out in early 2017.

Worship will, of course continue, but in the event of severe cold, as the winter months advance, appropriate alternative arrangements for worship may have to be considered.  For the time being, there are no plans to change the current use of Christ Church.

Daniel Pitt,  Sunday 16 October 2016

On behalf of Mike Ranstead, Revd Norma McKemey,

Stephen Grosvenor and Mike Palmer, Buildings and Site Development

 

Update on our heating system2017-01-27T17:39:25+00:00
Go to Top